Hausverwaltung

info Icon

Hans Schütt × Haus & Grund

Sie suchen Ihre Verwaltung?

Die Haus & Grund Immobilien GmbH Kiel und die Hans Schütt Immobilien GmbH haben im Rahmen der Fusion ihre Kräfte gebündelt. Fortan stehen Ihnen Ihre Miethaus-, Sondereigentums- und WEG-Verwaltung mit noch stärkeren Teams zur Verfügung. Die Prokuristin und Abteilungsleiterin Miethausverwaltung Frau Ulrike Beretta sowie die Ihnen bekannten Mitarbeiterinnen und Mitarbeiter sind wie gewohnt für Sie da.

Alle weiteren Informationen finden Sie auf der Webseite von Haus & Grund Kiel.

Porträt von Ulrike Beretta, Prokuristing und Leiterin Verwaltung bei Haus & Grund Kiel.

Ulrike Beretta

Leiterin Miethausverwaltung 0431 - 9069 - 0 info@hv-kiel.de

Angebote

Kiel City - 2 Ladenflächen zwischen Exerzierplatz und Holstenstraße! An der Wunderino Arena

Lage: 24103, Kiel
Verfügbar ab: nach Absprache
3419

Lagebeschreibung

Die angebotene Ladenfläche befindet sich in einem gepflegten Geschäftshaus in sehr guter Innenstadtlage der Landeshauptstadt Kiel. Die Wunderino-Arena mit dem Parkhaus befindet sich in unmittelbarer Nähe. Weitere Parkmöglichkeiten bieten der Exerzierplatz sowie die umliegenden Parkhäuser. Die Fußgängerzone "Holstenstraße" mit vielseitigem Einzelhandel und Bankinstituten ist ca. 100 m entfernt.

Bilder

Luftbild

Ansicht Eingangsbereich

Links

Einrichtungsidee (KI generiert)

Links

Links

Einrichtungsidee (KI generiert)

Links

Links

Links

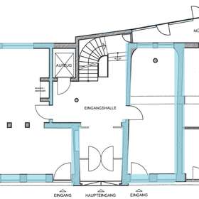
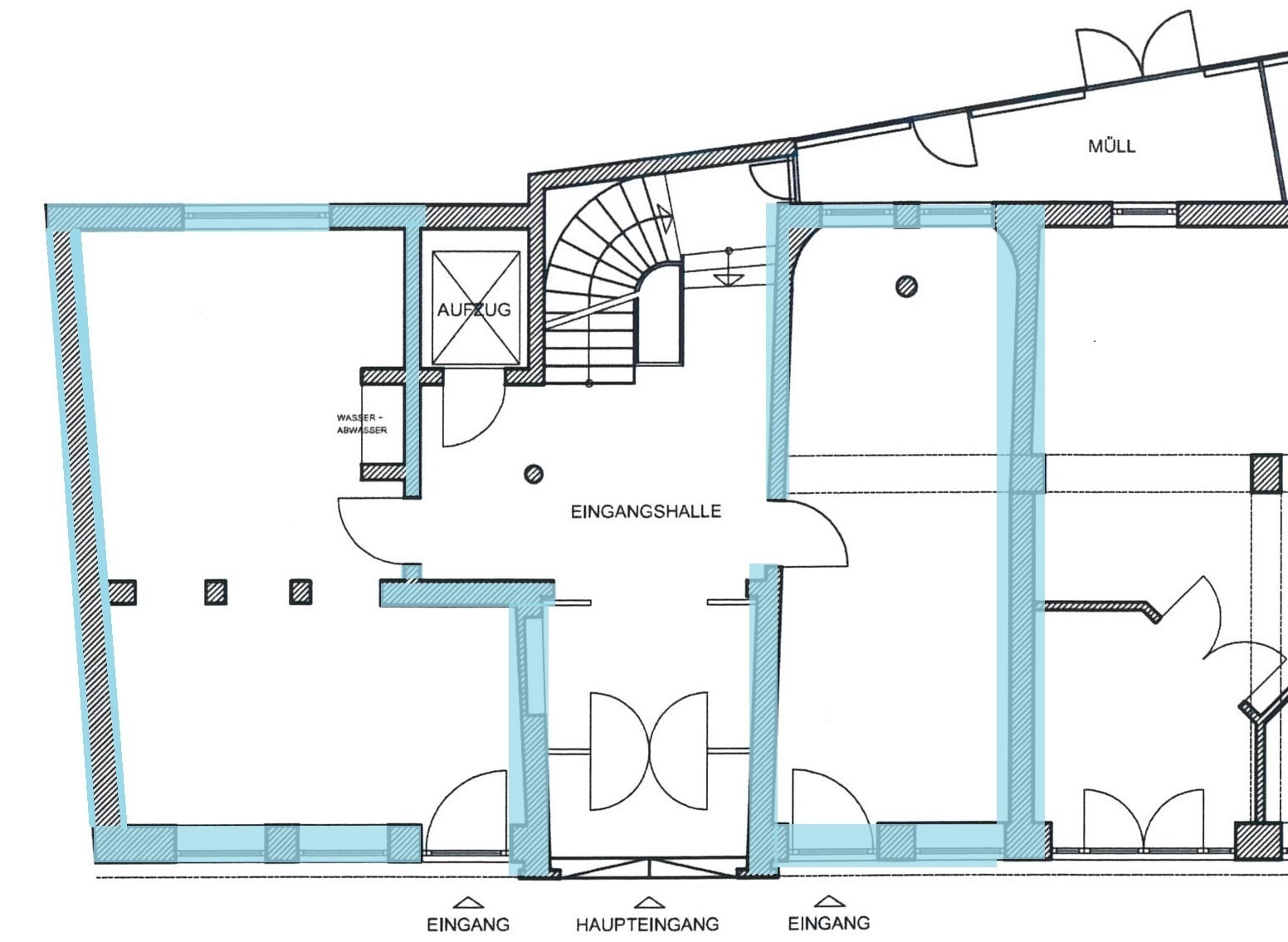
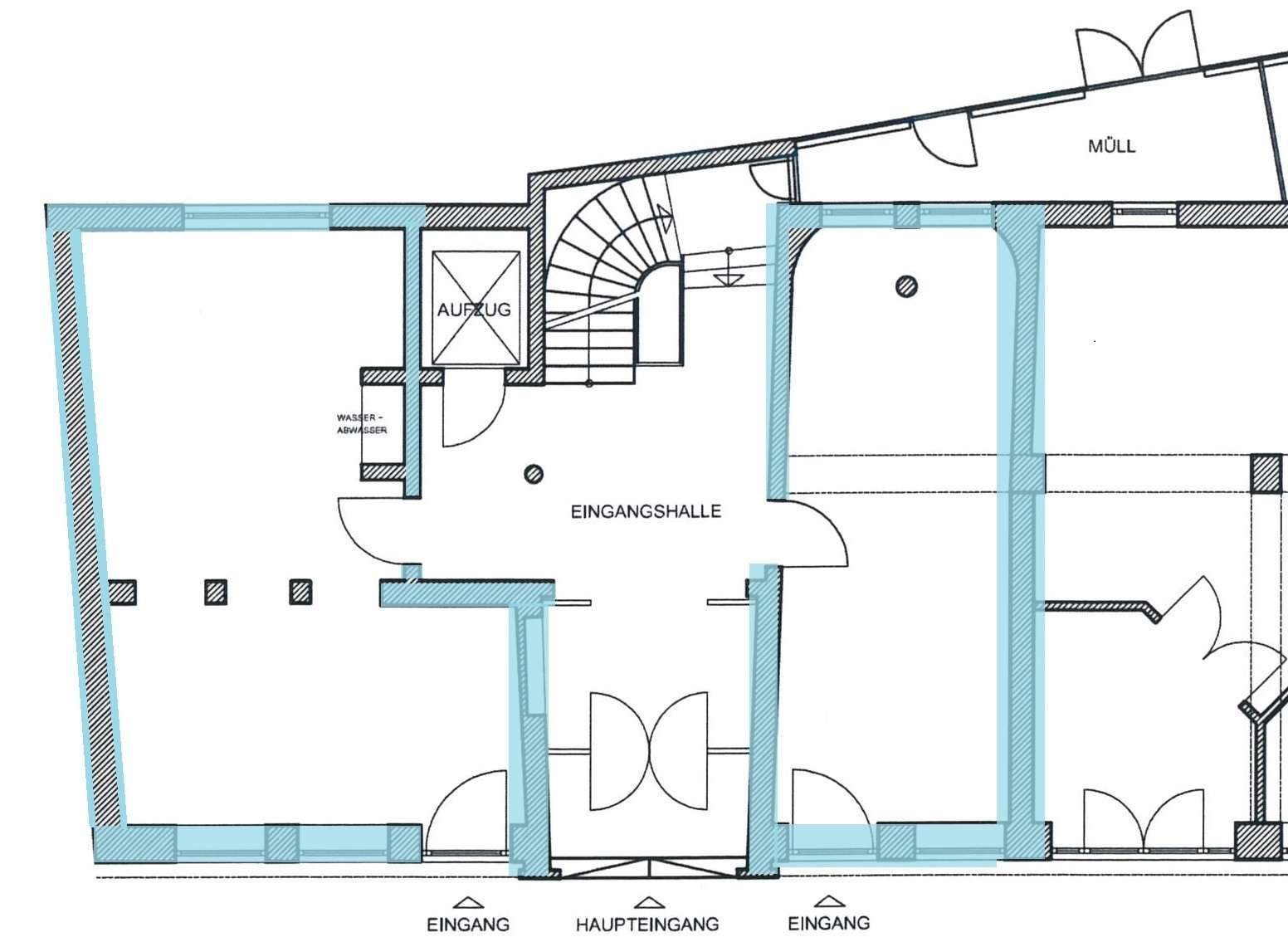
Grundriss nach Planungsunterlagen - Keine Gewähr für Vollständigkeit, Richtigkeit, örtl. Übereinstimmung

Einrichtungsidee (KI generiert)

Rechts

Rechts

Rechts

Kennzahlen

Nutzfläche ca.
80 m²
Etagenlage
EG
Preis / m²
23,65 €
Kaltmiete
1.892 €
Warmmiete
2.162 €
Heizkosten
110 €
Nebenkosten
160 €

Lage

Kleiner Kuhberg 2-6
24103 Kiel
Schleswig-Holstein

Ausstattung / Merkmale

Keller
Ja

Energieausweis

Energieausweis
liegt vor
Erstellungsdatum
ab 1. Mai 2014
Ausstellungsdatum
28.11.2017
gültig bis
28.11.2027
Energieausweistyp
Verbrauchsausweis
Energieeffizienzklasse
B
Energiekennwert
57,5 kWh/(m²·a)
Energiekennwert Strom
45,2 kWh/(m²·a)
Energiekennwert Wärme
82,1 kWh/(m²·a)
Heizungsart
Zentralheizung
Wesentlicher Energieträger
Fernwärme
Baujahr
1955

Jetzt Exposé anfordern

Wir freuen uns auf Ihre Anfrage. Wir werden uns schnellstmöglich bei Ihnen melden.